Menu
(514) 867-9866

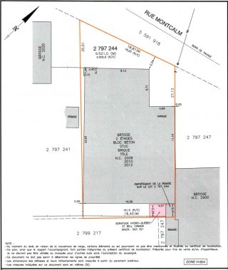
2008-2012 Rue Montcalm

Longueuil (Saint-Hubert) J4T2C7

399 000 $

Triplex | MLS: 18527360


Description

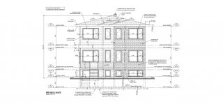
Excellente opportunité pour investisseur ou constructeur expérimenté. La propriété nécessite des travaux majeurs ou une démolition complète, offrant un fort potentiel de redéveloppement résidentiel. Possibilité de créer jusqu'à 8 unités, sous réserve des vérifications et approbations municipales. Plans pour un triplex disponibles. Emplacement stratégique à proximité de l'hôpital Charles-LeMoyne, des services, écoles et avec accès rapide aux autoroutes 116, 134, 112 et 132. Secteur recherché et forte demande locative. Zonage résidentiel. L'acheteur devra effectuer toutes les vérifications requises pour son projet.

- Phase environnementale 2 disponible avec contamination partielle sur la partie garage.

- Cette vente est réalisée sans aucune garantie légale de qualité, aux risques et périls de l'acheteur.

Inclus : Tout tel quel.

Location

Caractéristiques

Garage Attaché
Stationnement Au garage, Extérieur
Particularités Étude environnementale phase 1, Étude environnementale phase 2
Système d'égouts Municipal
Approvisionnement en eau Municipalité
Zonage Résidentiel